Продажа дома

Воронежская область, Преображенка село,

206 м²
Площадь
123.91 м²
Жилая площадь
15.32 м²
Площадь кухни
2
Этажность
30 сот
Площадь участка

4 500 000 ₽

21 873 ₽ за м²

ID объявления 11889931

Поделиться

Добавить в избранное

СРОЧНО продаётся деревянный дом (сруб) на два этажа 205, 74 квадратов на 30 сотках: село Преображеновка, ул.Новый Порядок, Добровский муниципальный округ, Липецкая область.

Идеальное место для любителей рыбалки, охоты и русской природы в сочетании с цивилизацией!

Преимущества локации:
Рыбалка и охота - ваши трофеи начинаются прямо за калиткой
Речка Смородинка с благоустроенной набережной: (скамейки, фонтаны) летние вечера у воды и зимние прогулки
Развитая инфраструктура: магазины, аптеки, новая школа, детсад и клуб (курация губернатора Липецкой области)
Тишина + комфорт всё необходимое в селе, но природа под рукой!

О доме:

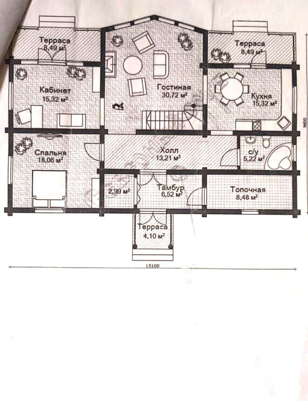
Сруб изготовлен из зимнего леса, сухой устоявшийся дом. Две террасы по 8, 49 м и одна 4, 10 м. Две гардеробные 2, 99м и 3, 06м.

Проектом предусмотрены:

- Гостиная (второй свет) 30, 72 м и 6 комнат; 2 гардеробные.

- Кухня 15, 32 м с выходом на террасу.

- Один санузел на первом этаже и два на втором.

Электричество подведено. Есть скважина.

Газ по линии участка проведён.

Утеплённая крыша, фундамент бетонный(М300) 2 м в глубину и 0, 5 м от земли, толстые тёплые стены.

Снаружи обработан декоративной пропиткой "Сенеж".

Требуется чистовая отделка.

О местности:

Село Преображеновка 6 лет подряд признаётся лучшим селом России.

Ни одной сельской дороги без асфальта. На всех улицах горят светодиодные светильники. Цветники из тюльпанов и петуний.

До остановки автобусов примерно 200-300 м.

До города 18 км.

Возможен он-лайн показ.

Документы проверены.

1 собственник. Обременения отсутствуют.

При покупке в ипотеку, помощь в одобрении у банков партнёров!!!

Дата обновления: 10 февраля 2026

Дом/Коттедж/Таунхаус/Дуплекс От собственника Ипотека