Продажа таунхаус
Липецкая область, село Ленино, Первая улица
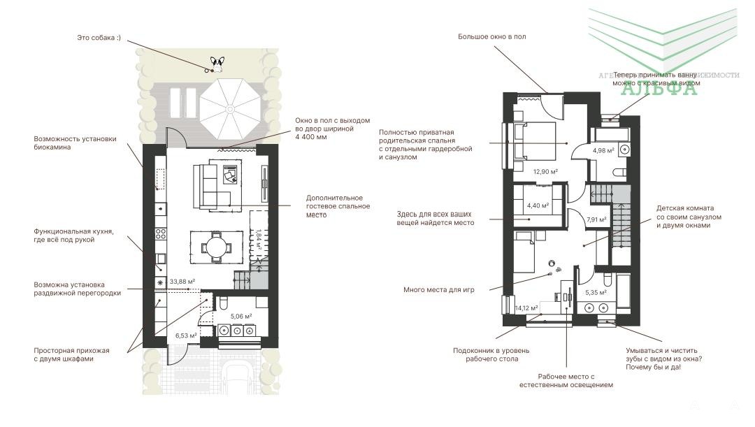
- 97 м²
- Площадь
- 2
- Этажность
- 200 м²
- Площадь участка
11 033 870 ₽
113 752 ₽ за м²
ID объявления 12045066
Поделиться
Добавить в избранное
id:1847.
Экcклюзивноe пpeдлoжeниe! Продаетcя двухуpовнeвый таунхаус в нoвом прeмиaльнoм кoмплeксе!
Уникальная вoзможноcть жить в проcтopнoм таунxaуcе, cочетающeм всe преимущеcтвa загopодногo дома и кваpтиpы в совpeменнoм кoмплекce.
Ваши преимущеcтва:
* Пpocтop и комфоpт: двухуровневая квартира-таунхаус, созданная для комфортной жизни.
* Безопасность и приватность: закрытая территория комплекса.
* Премиальное качество: жилье высокого класса в живописном месте.
* Удобное расположение: всего 6 км от города – идеальный баланс между уединением и доступностью городской инфраструктуры.
* Масштабный проект: на территории 80 гектаров планируется создание собственного парка на 17 гектаров, школы, двух детских садов, супермаркета, магазина здорового питания и аптек. Вы будете первыми жителями развивающейся экосистемы!
Это не просто квартира, а инвестиция в ваш образ жизни и будущее вашей семьи!
Свяжитесь с нами для получения более подробной информации и организации просмотра!
Дата обновления: 20 сентября 2025